Kamienica na sprzedaż Siedlce ul. Kochanowskiego
Siedlce Pokaż na mapie ›
Odświeżone: Czwartek, 16 Październik, 2025 13:30
2 995 000 zł
Szczegóły ogłoszenia
- Kategoria: Biura i lokale / Sprzedaż
- Powierzchnia:429 m2
- Sprzedaż:Pośrednik
- Cena: 2 995 000 zł
Opis oferty
Na sprzedaż kamienica w doskonałej lokalizacji w centrum Siedlec, przy ul. Kochanowskiego.Budynek z przedwojennym charakterem, który nadaje mu unikalną atmosferę i historyczną wartość. W 2015 roku przeprowadzono rozbudowę parteru z wykorzystaniem pustaka gazobetonowego oraz odnowiono elewację.
Szczegóły nieruchomości:
Powierzchnia całkowita: 429 m²
Powierzchnia użytkowa: 388 m²
Powierzchnia działki: 331 m²
Ogrzewanie: miejskie
W kamienicy znajdują się lokale użytkowe, w których obecnie prowadzone są różnorodne działalności gospodarcze, co czyni ją atrakcyjną inwestycją. Możliwość przejęcia najemców – do uzgodnienia.
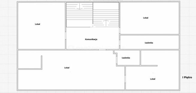
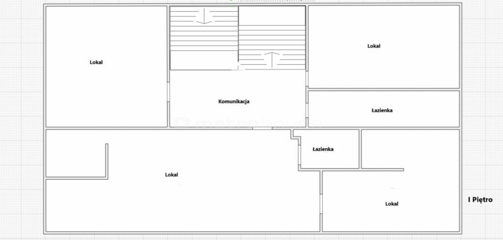
Układ pomieszczeń:
Parter: 2 lokale o łącznej powierzchni użytkowej 190 m², rozdzielone strefą komunikacyjną (korytarz i klatka schodowa).
I piętro: 4 lokale o łącznej powierzchni 119 m².
Poddasze: 81 m², podzielone na 2 lokale.
Zalety nieruchomości:
Atrakcyjna lokalizacja w sercu miasta.
Historyczna architektura z potencjałem do adaptacji.
Możliwość dalszego wynajmu lokali użytkowych.
Bliskość do komunikacji miejskiej oraz innych punktów usługowych.
Dostęp do parkingu przed budynkiem oraz na terenie posesji.
Kamienica zapewnia niezależne wejście na wyższe kondygnacje, co ułatwia dostęp dla najemców. To doskonała okazja zarówno dla inwestorów, jak i dla osób szukających lokalu do własnej działalności. Zapraszam do kontaktu w celu umówienia się na prezentację nieruchomości!
Czy wiesz, że możemy przygotować dla Ciebie prezentację on-line nieruchomości? Skontaktuj się z naszym Agentem i zapytaj o szczegóły.
Pomimo, iż Doradcy Metrohouse przykładają szczególną staranność do rzetelnego prezentowania informacji o nieruchomości, nie zawsze jest możliwa weryfikacja wszystkich danych przekazanych od osób trzecich. Niniejsza prezentacja oferty nie jest ofertą w rozumieniu Kodeksu Cywilnego i ma charakter wyłącznie informacyjny.
Sprawdź zainteresowanie tym ogłoszeniem
Wyświetlenia
Data dodania
Ostatnio widziany
Obserwujących
Wysłane zapytania
Odsłony telefonu
Powiadom o podobnych ogłoszeniach
Lokalizacja: Siedlce
Kategoria: Nieruchomości » Biura i lokale » Sprzedaż
Cena: od 2546000 zł do 3444500 zł Powierzchnia : od 365 m2 do 493 m2
Chcę otrzymywać powiadomienia o nowych ofertach
- Wypromuj ogłoszenie
- Zgłoś naruszenie
- Drukuj ulotkę
- Edytuj/usuń ogłoszenie
- Udostępnij ogłoszenie
- Dodaj na Facebook




















